Informationen
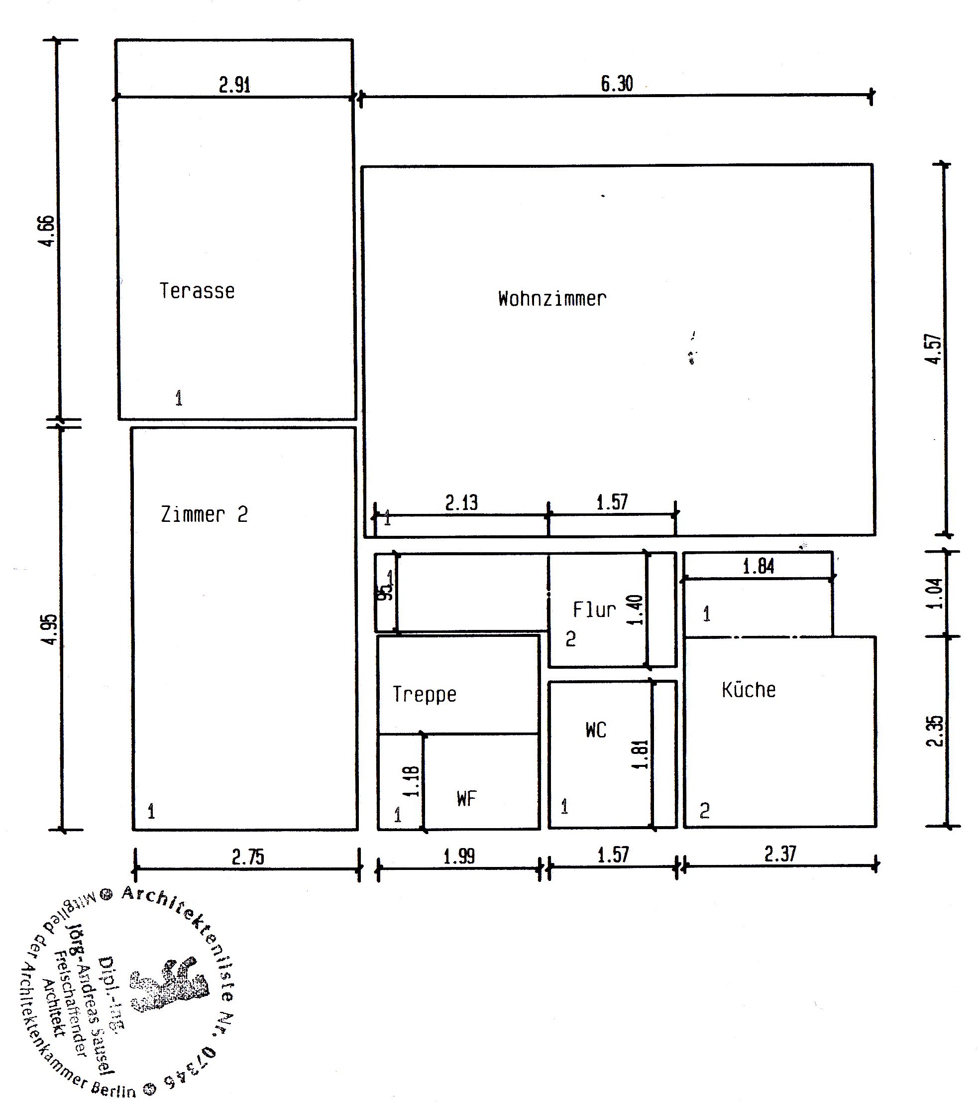
- Schlafzimmer: 4
- Badezimmer: 1
- Kleines Bad: 1
- Räume: 5
- Flur: 2
- Etagen: 2
- Wohnfläche, m²: 115 m²
- Grundstück, m²: 865 m³
- Jahr gebaut: 1989
- Jahr renoviert: 2025
Beschreibung
-
Beschreibung:
Objektbeschreibung
Dieses modernisierte Einfamilienhaus mit ca. 115 m² Wohnfläche wurde 1989 erbaut und zuletzt 2025 modernisiert. Es bietet 5 Zimmer und 2 Vollgeschosse, ideal für Familien. Das Haus befindet sich in einem gepflegten Zustand mit normaler Ausstattungsqualität. Eine Garage ist vorhanden und bietet Platz für Ihr Fahrzeug. Ein Gäste-WC und ein Keller sind ebenfalls Teil des Hauses. Die Heizung erfolgt über eine Zentralheizung. Das Haus ist sofort verfügbar.
Ausstattung
In 2025 wurde die Heizungsanlage komplett erneuert. Die Dachrinnen wurden 2023 erneuert. Die Bäder und die Elektrik wurden im Jahr 2000 modernisiert. 2009 wurden alle Wasser- und Abwasserleitungen erneuert.
Lage
Eichwalde ist eine charmante Gemeinde im Landkreis Dahme-Spreewald, die eine gute Anbindung an Berlin bietet. Die Umgebung zeichnet sich durch viel Grün und eine ruhige Wohnlage aus, die dennoch eine gute Infrastruktur für den täglichen Bedarf bereithält. Einkaufsmöglichkeiten, Schulen und Freizeiteinrichtungen sind gut erreichbar und machen Eichwalde zu einem attraktiven Wohnort.
Sonstiges
Das hier angebotene Haus steht auf einem Erbpachtgrundstück. Die mtl. Erbpacht beträgt 104,00€.
Bei Kontaktaufnahme hinterlassen Sie bitte eine Rückrufnummer, da sonst keine Kontaktaufnahme erfolgt.
Details
- Klimaanlage: keine
- Heizung: Gaszentralheizung


