Flexibel nutzbare Gewerbefläche in guter Ortslage (Verkauf)
Grünauer Straße 47, 15732 Eichwalde
€240.000
Anfrage
Informationen
- Badezimmer: 1
- Räume: 2
- Etagen: 2
- Wohnfläche, m²: 137 m²
- Jahr gebaut: 1995
Beschreibung
-
Beschreibung:
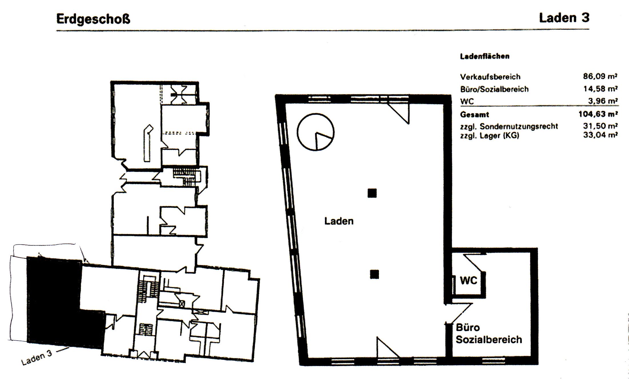
Objektbeschreibung
Die Gewerbeeinheit befindet sich in einem Wohn- und Geschäftsgebäude und erstreckt sich über Erd- und Kellergeschoss. Die Ebenen sind über eine Wendeltreppe verbunden. Das Erdgeschoss ist barrierefrei erreichbar.
Lage:
Das Gebäude liegt direkt neben dem Rathaus Eichwalde in der nähe des Ortszentrums.
Sonstiges
Die Gewerbeeinheit ist derzeit vermietet (Miethöhe: 1.200,00 €).
Bei Kontaktaufnahme hinterlassen Sie bitte eine Rückrufnummer, da sonst keine Kontaktaufnahme erfolgt.
Details
- Klimaanlage: keine
- Heizung: Gaszentralheizung
Anbindung
- Verkehrsanbindung: 7 Fußminuten zum S-Bahnhof Eichwalde
Hier anfragen
Powered by Estatik


